当社プロジェクト事例を随時公開中!
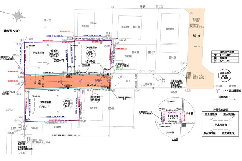
さくらタウン見和宅地分譲(3区画の宅地造成工事)

3区画の宅地造成工事。
| プロジェクト名 | さくらタウン見和宅地分譲(3区画の宅地造成工事) |
|---|---|
| クライアント | 積水ハウス株式会社 |
| 対応時期 | - |
| 対応場所 | 茨城県水戸市見和三丁目580-63(他6筆) |

3区画の宅地造成工事。
| プロジェクト名 | さくらタウン見和宅地分譲(3区画の宅地造成工事) |
|---|---|
| クライアント | 積水ハウス株式会社 |
| 対応時期 | - |
| 対応場所 | 茨城県水戸市見和三丁目580-63(他6筆) |
株式会社AKIYAMA
〒310-0903 茨城県水戸市堀町1108-8 2F
TEL 029-350-2280/FAX 029-350-2800
【受付時間】月曜〜金曜 9:00〜18:00